Green Path

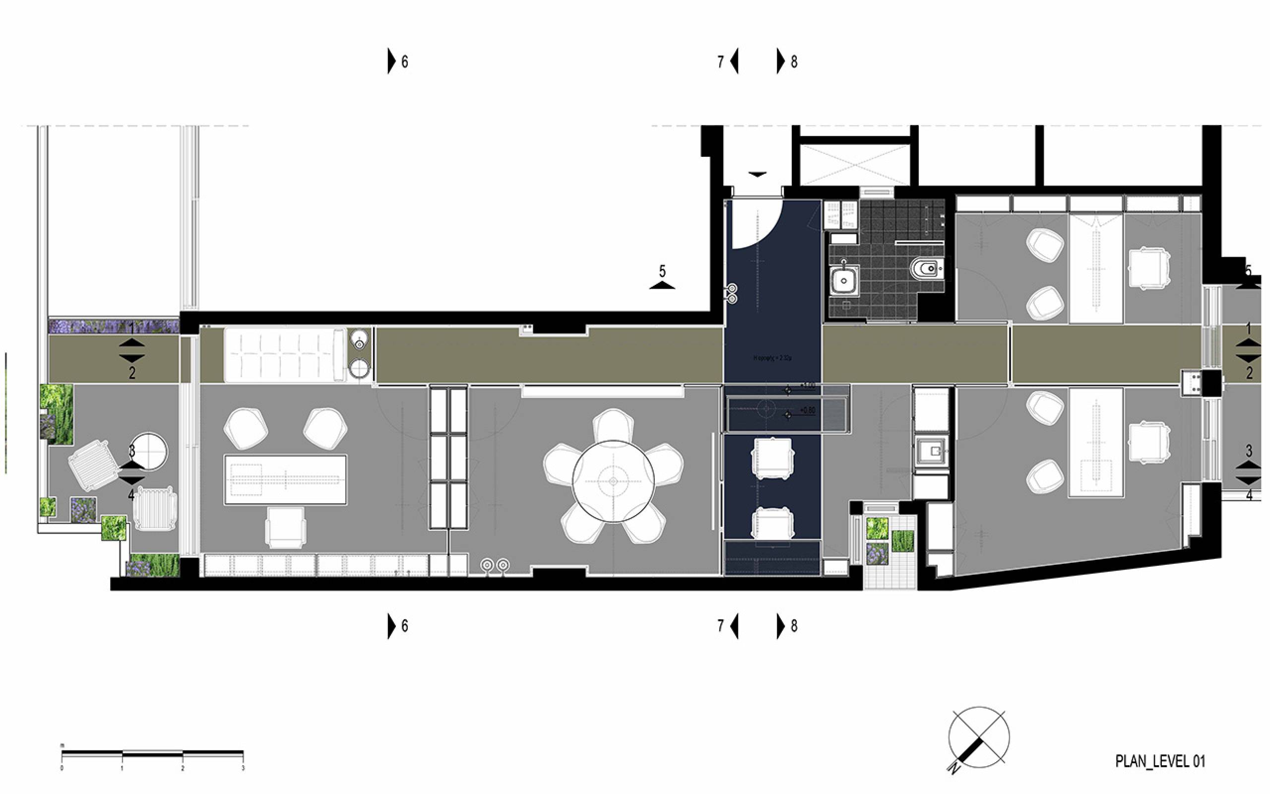
The Athenian suburb of Glyfada with one of its Seventies buildings was a setting for the Green Path Renovation Project, where architects transformed compact, neglected, residential space into the contemporary Law Office. Consistently adopted biophilic approach helped in fulfilling functional and technical demands, without compromising the human character of the workspace. Thus, creating green oases that envelop working spaces, improving natural light conditions together with ventilation and applying materials that echo nature, contributed to coping successfully with the challenging daily work.

  • Location

    Glyfada_ Attica_ Greece
  • Year

    2024
  • Interior design Author

    Ivana Lukovic, Architect_ Athens/Greece
  • Collaborators

    Alexandra Arampatzi, Architect_ Athens/Greece Stanford Rabbit (Kostas Geranios and Orestis Mpormpantonakis), Renderings_ Athens/Greece
  • Contractor

    ELER AE_ Athens/Greece (Dr. Andronikos Theocharis, Civil Engineer and Konstatinos Galatas, Civil Engineer_ Athens/Greece)
  • Mechanical Study

    Tasos Katsaros, Mechanical Engineer_ Athens/Greece
  • Joinery

    DDecorate by Dionisios Divaris_ Attica/Greece
  • Photo credits

    Athina Souli, Photographer_ Athens/Greece
  • Video credits

    Athina Souli and Vangelis Michelidakis_ Athens/Greece